Moderní vila s top designem - Prodej - Tribunj

Kód: 1050
Cena
Cena: 900 000 €
Informace o nabídce
Druh objektu: Rodinný
Dispozice: 4 pokoje
Stav nemovitosti: Novostavba
Terasa: Ano
Bazén: Ano
Umístění: U moře
Energetický štítek
Třída energetické náročnosti budovy: A - Mimořádně úsporná

Popis

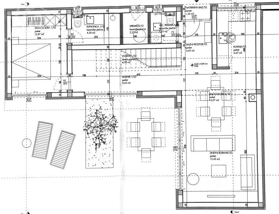
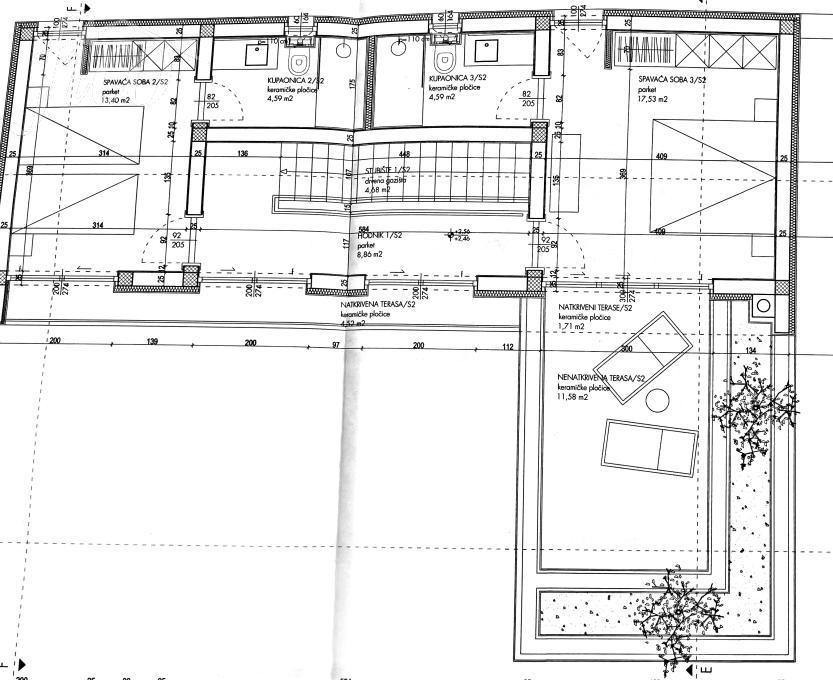
Luxusní nově postavený dům s výhledem na moře, v klidné a atraktivní lokalitě v Tribunji. Je navržená pro maximální komfort bydlení. Dům se rozkládá na dvou podlažích - přízemí + první patro s celkovou užitnou plochou 150 m², s upravenou oplocenou zahradou o rozloze 150 m2. Exteriér doplňuje velká terasa, bazén a dvě parkovací místa. V přízemí se nachází vstupní hala, koupelna, toaleta s prádelnou, jedna ložnice a prostorná kuchyň s jídelnou a obývacím pokojem, ze které je vstup na krásnou terasu a dvůr s bazénem. Tento prostor je navržen jako centrum pro rodinné setkávání a zábavu. V prvním patře se nacházejí dvě ložnice - obě s vlastní koupelnou a velká nekrytá terasa s výhledem na moře. Dům je postaven a vybaven podle vysokých standardů kvality a moderního designu. Nachází se v klidném prostředí a zároveň v ideální vzdálenosti od veškeré občanské vybavenosti: pouhých 600 m od pláže a 650 m od centra města. Dům byl postaven v roce 2025, je kompletně vybaven designovým nábytkem.

Ponechte nebo napište prosím číslo sto padesát šest.

Kontakt na makléře:

Jméno: Jana Rossi
Telefon: 608 908 777
E-mail: fico@fico.cz
Ponechte nebo napište prosím číslo sto padesát šest.